Staff Blog スタッフブログ
2025.11.24
架構設計
こんにちは!
ラーメン特盛を食べてしまったエコーアートの袴田です(>_<)

しかも、まぜそばです!
大好物のまぜそば…おいしゅうございました♪
本日は、架構(かこう)設計についてお話したいと思います。
まず、架構とは何か?
柱や梁材を架けてできた構造躯体のことです。
写真で出すとこんな感じのこと。

縦方向の部材が柱。横方向の部材が梁(はり)と言います。
これらを組み合わせて架けることを架構と言います。
本日のタイトルは「架構設計」になるので、部材を架けることの設計を意味します。
耐震等級3は、恐らくどのように架構設計しても取れるでしょう。
でも、そこには良い耐震等級3とバランスの悪い耐震等級3が存在すると思います。
この辺りは、明確な決まりがないので全て設計者判断になる部分。
それは、大手ハウスメーカーでも地元工務店でも同じこと。
どのようなことかと言いますと…
例えば、下記写真では柱の上に乗っている梁は、写真とは異なる方向に架けてもOKなのです。
さまざまな条件を満たせばの話ですけど。

さて、先ほども言いましたように、この架構設計については明確な決まりは皆無です。
しかも、ここで1番重要になってくるのは、お客様が家づくりにおいて
最も楽しみにしていると言っても過言ではない「間取り」なのです(>_<)
間取によって、良い耐震級3かバランスの悪い耐震等級3かが決まってしまいます!
ここからは、その理由を説明していきますね!
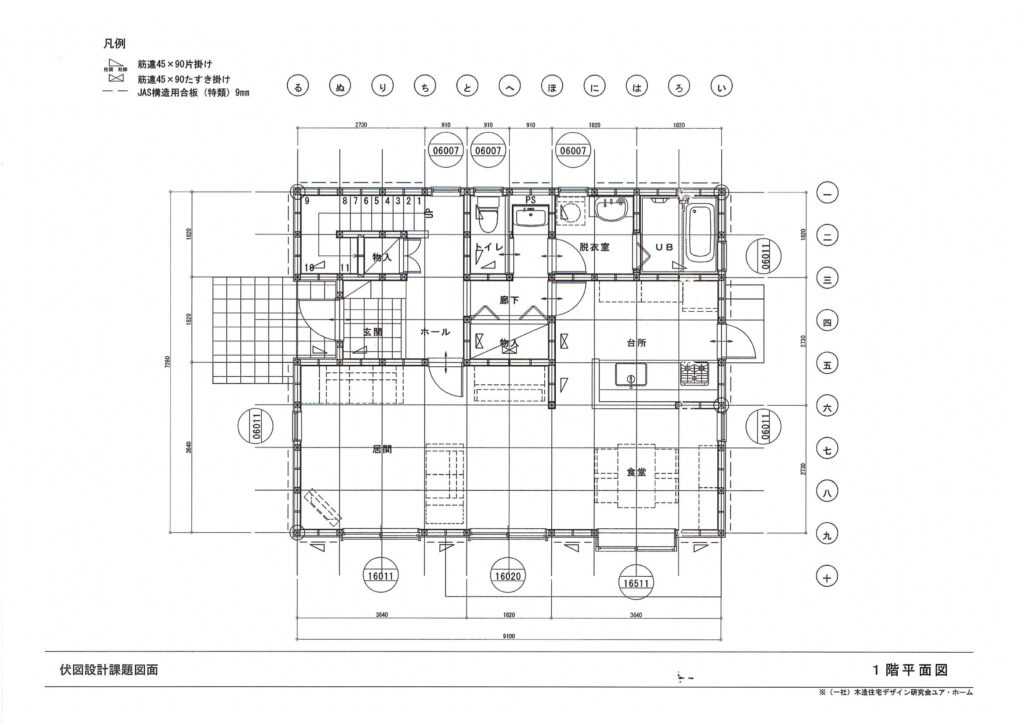
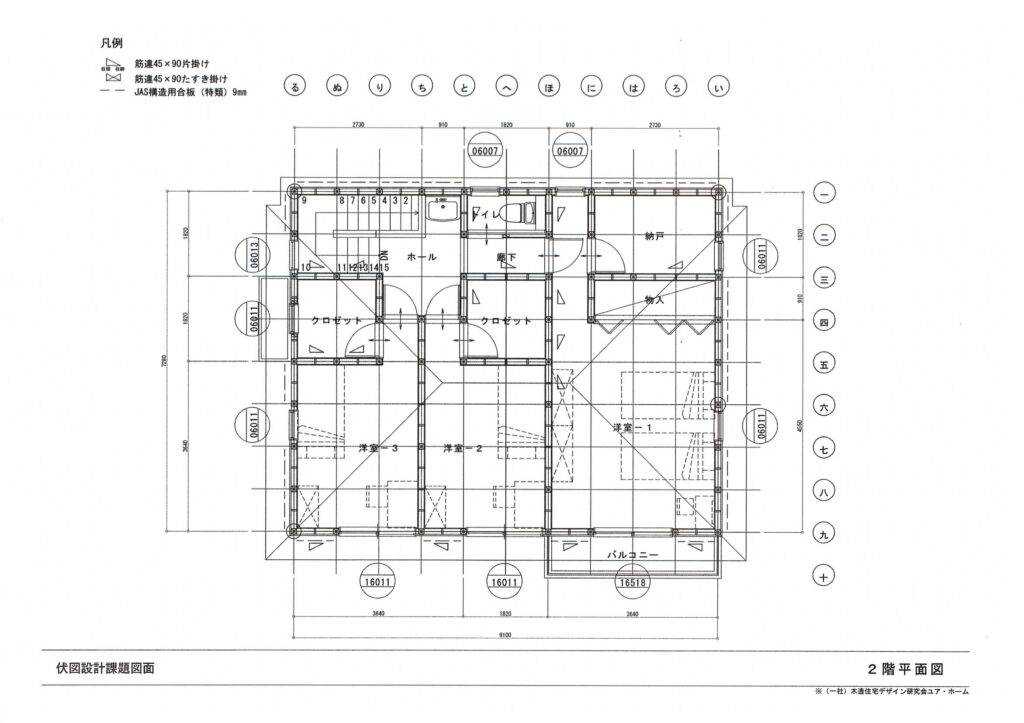
まずは、こちらの間取をご覧ください。


1階と2階の平面図です。
お客様の家ではなく…今現在、架構講座という講習を受講しておりまして
その課題で出た間取図です。
明確な基準がないことでも、考え方次第で答えを出せたり
選択肢を絞ることができたり、場合によっては〇〇はNGだから△△にするという
考え方を導き出せたりすることもあります。
上の1,2階平面図から、下記のようなブロック図とチェック図を書き出すことができます!

これは何かと言いますと、1階壁のラインを青のマーカーで引き
2階壁のラインを赤のマーカーで引きます。
1,2階の壁の通りが重なるところは、紫色にマーカーが変色します。
可能な限り、紫色のラインになるよう間取を設計します。
次に、茶色の✕印がありますが、これは架構ブロック図と言いまして
このブロックを元に構造を考えていくものになります。
ブロックは、1,2階で出来る限り揃えた方がバランスはよくなります。
そして、上の写真の青い〇印と赤い〇印がありますが…こちらを解説します。
青い〇印は、1階と2階の柱の位置が同じ位置である柱のこと。
赤い〇印は、2階の柱はあるけれど、1階に柱がないことを意味します。
建物の力は、上から下に伝わるので…1階と2階の柱の位置が同じ位置にある方が
スムーズに力が伝わります。
よって、青い〇印の柱を多くすることが望ましいのです(^0^)
=1階と2階の壁のラインを揃えるのが望ましいのです!

こちらは、2階のチェック図です。
このチェック図を元に、梁の架け方を検討していきます。
何度も言いますが、法的に決まりがないことです。

上の写真の柱の上に乗っている水平方向の材料の架け方を言います。
ここでは、可能な限り青い〇印の柱に乗るように梁を架けていくことが
ベストな選択になります。
赤い〇印の柱に、梁を架けると上からの力の伝わり方が複雑になりがちだから。
特に、1階に柱がないため、2階から1階に力が移った時に、複雑な力の流れになると思います。
法的な決まりはありませんが、考え方で青い〇印の柱が安全であることから
赤い〇印の柱には、梁は架けるべきではないと考えることができます!
これらを全て考慮すると、やはり間取りを考える段階からバランスの良い構造は
決まってくるのです。
しかし、そこには、お客様のご要望があり、ご予算があります。
他には、外観デザインも考慮して考えなければなりません。
そこにバランスの良い構造も合わせて検討する必要があります。
お客様のご要望オンリーで考えると、間違いなく構造は疎かになりますし
お客様は、当たり前に地震に強い家であると思い込んでいる側面もあります。
ここが設計者とお客様の間で、感覚が隔たったところだと思います。
来る来ると言われて、早30年以上…東海大地震、東南海地震に備えた家づくりを
していかなければいけないと思うここ20年です。。。
あっ、僕社会人になって、まだ20年経っていませんでしたとさw